register | confirm account | forgot password
Robin Hage
Maxwell Polaris
4107 99 St NW, Edmonton, Alberta
P: 780-450-6300
F: 780-439-7248
Email

Listing Details

For more information on this listing or other please contact me.

Courtesy of MaxWell Polaris.
Data was last updated 2025-06-25 at 20:18:11 GMT
$129,900

11450 40 Avenue   Edmonton, Alberta

MLS®: E4468646
URL:    
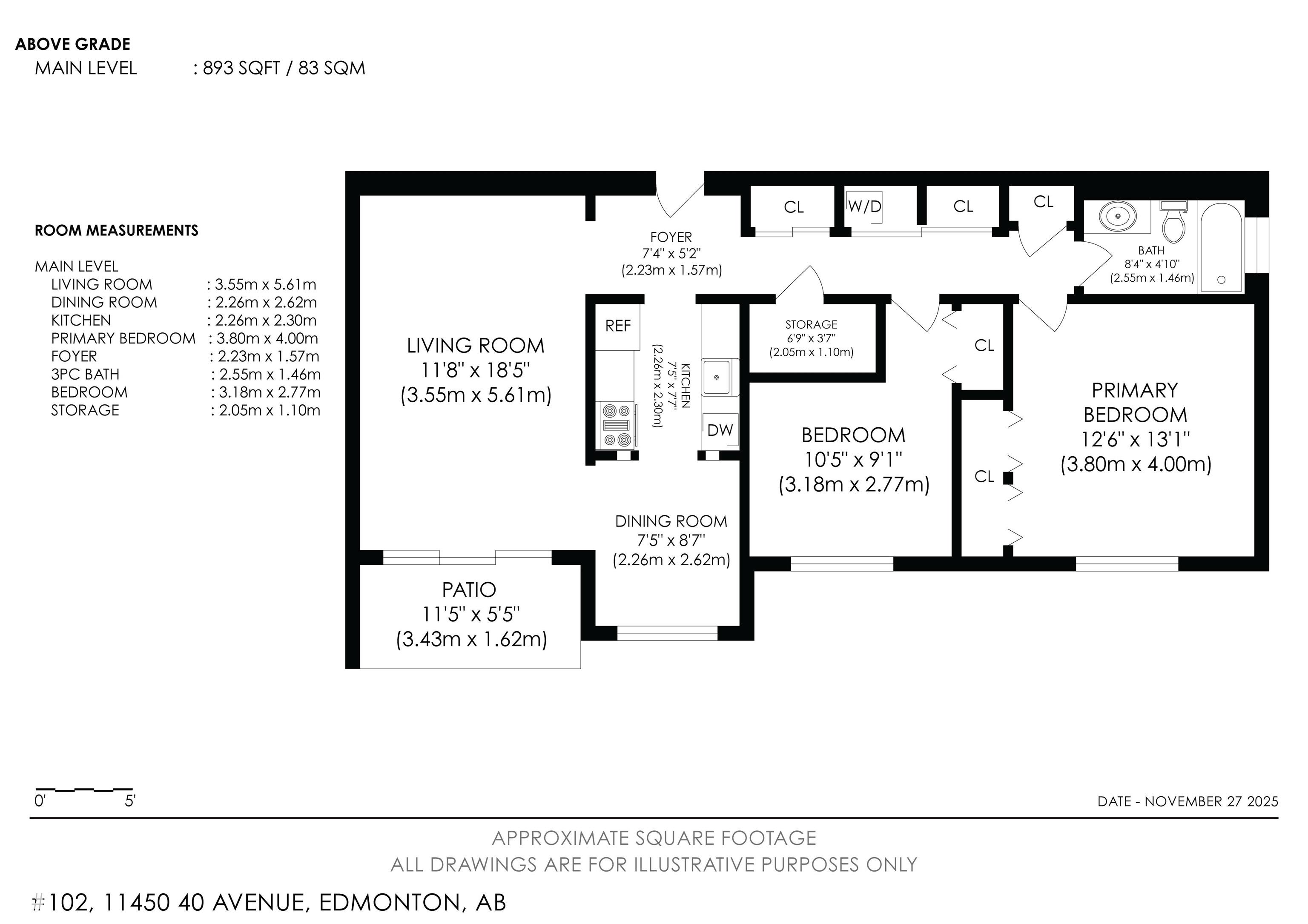
Affordable ground-floor condo with a serene park view! This bright and spacious 893 sq. ft. unit offers exceptional convenience?especially for pet owners with direct access to green space and your own oversized patio, perfect for outdoor dining, BBQs, and gardening. Inside, you?ll enjoy a well-designed layout featuring 2 bedrooms, a functional galley kitchen, a separate eating nook, and an impressively large living room filled with natural light. The modern 4-piece bathroom has been tastefully updated. Recent improvements include a new dishwasher, fresh paint, and new flooring in both the unit and the building?s hallways. Additional features include an In-suite stacked washer and dryer, Generous in-unit storage, with the option to rent additional storage. Titled underground parking stall conveniently located near the access doors. The building offers excellent amenities such as a fully equipped gym, saving you the cost of an external membership, and a guest suite available for rent for visitors.
Affordable ground-floor condo with a serene park view! This bright and spacious 893 sq. ft. unit offers exceptional convenience?especially for pet owners with direct access to green space and your own oversized patio, perfect for outdoor dining, BBQs, and gardening. Inside, you?ll enjoy a well-designed layout featuring 2 bedrooms, a functional galley kitchen, a separate eating nook, and an impressively large living room filled with natural light. The modern 4-piece bathroom has been tastefully updated. Recent improvements include a new dishwasher, fresh paint, and new flooring in both the unit and the building?s hallways. Additional features include an In-suite stacked washer and dryer, Generous in-unit storage, with the option to rent additional storage. Titled underground parking stall conveniently located near the access doors. The building offers excellent amenities such as a fully equipped gym, saving you the cost of an external membership, and a guest suite available for rent for visitors.

Listing Information

Prop. Type:
Apartment
Property Style:
Single Level Apartment
Status:
Active
City:
Edmonton
MLS® Number:
E4468646
Bedrooms:
2
Neighbourhood:
Royal Gardens (Edmonton)
Area:
Edmonton
Province:
Alberta
Listing Price:
$129,900

General Information

Year Built:
1970
Total Square Feet:
893ft2

Additional Information

Basement Dev:
None, See Remarks
Parking:
Heated, Parkade, Underground

VIP-Only Information

Sign-Up or Log-in to view full listing details:
Sign-Up / Log In
This property is listed by MaxWell Polaris and provided here courtesy of Robin Hage. For more information or to schedule a viewing please contact Robin Hage.
Robin Hage
Maxwell Polaris
Phone: 780-450-6300
Mobile Phone: 780-721-7653
Inquire Via Email
Data is deemed reliable but is not guaranteed accurate by the REALTORS® Association of Edmonton.
Photo and business card details widget
Robin Hage
Agent Photo
TelephoneOffice Phone:
780-450-6300
TelephoneMobile Phone:
780-721-7653
TelephoneFax:
780-439-7248
Email MeEmail:
MLS® Search Button
Button advertising your MLS® Search page
Map-based MLS® Search
Data last Updated: 2025-06-25 at 20:18:11 GMT America/Edmonton
This site's content is the responsibility of Robin Hage, licensed REALTOR® in the Province of Alberta.
The trademarks REALTOR®, REALTORS®, and the REALTOR® logo are controlled by The Canadian Real Estate Association (CREA) and identify real estate professionals who are members of CREA. Used under license.
The trademarks MLS®, Multiple Listing Service®, and the associated logos are owned by The Canadian Real Estate Association (CREA) and identify the quality of services provided by real estate professionals who are members of CREA. Used under license.

© 2026, All Rights Reserved | Privacy Policy | Mobile Site | REALTOR® Websites by RealPageMaker